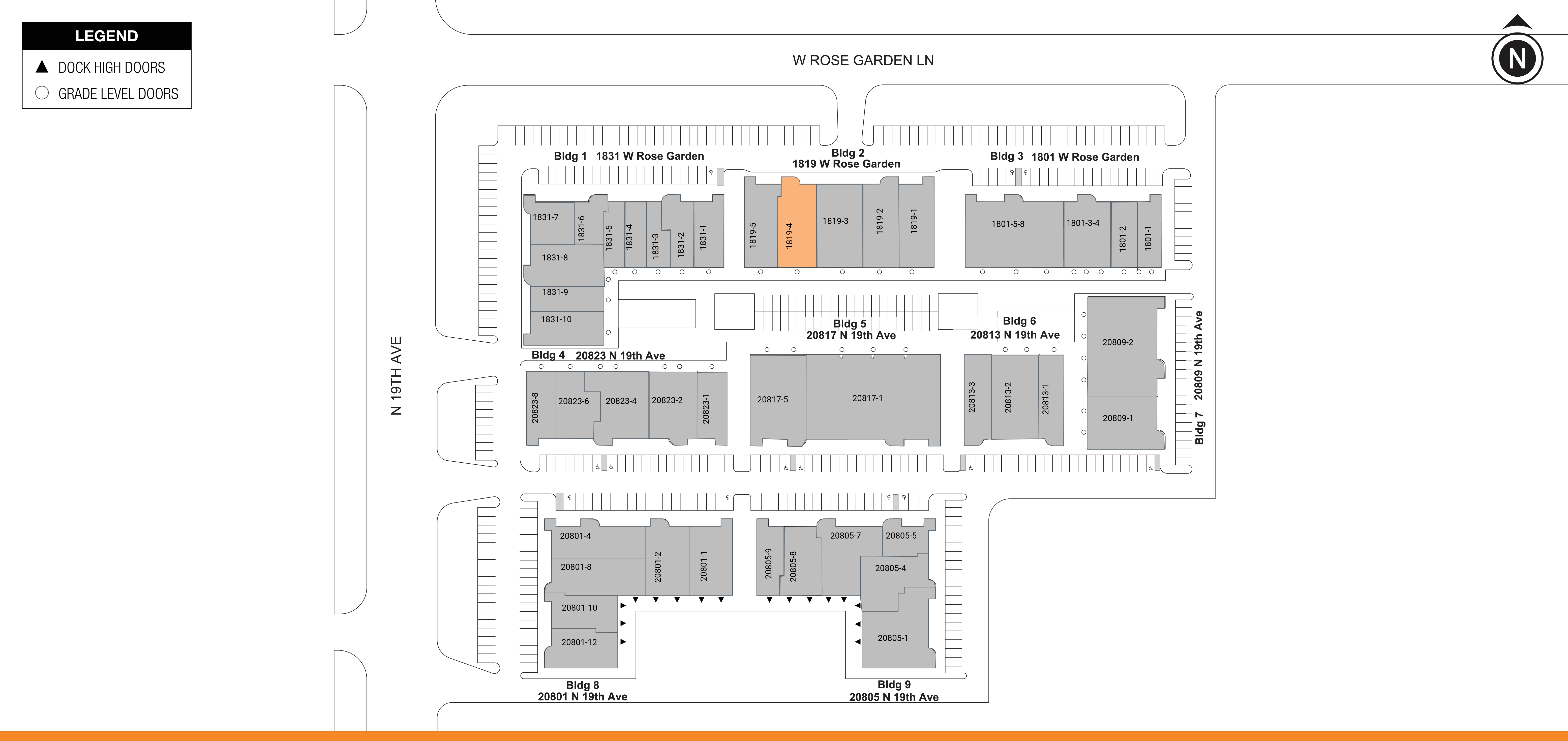
Rose Garden Business Park
1801-1831 W. Rose Garden Lane & 20801-20823 N. 19th Ave Phoenix, AZPROPERTY FEATURES
- NINE BUILDINGS TOTALING 157,101 SF (OFFICE/INDUSTRIAL)
- AVAILABLE SUITES RANGING FROM 3,648 TO 8,145 SF READY FOR IMMEDIATE OCCUPANCY, WITH VARIOUS PERCENT OFFICE BUILD-OUTS
- 18' CLEAR HEIGHT AND 10X10 GRADE LEVEL LOADING
- 2.6:1,000 PARKING RATIO
- SHARED TRUCKWELL
- FRONTAGE ON 19TH AVE AND ROSE GARDEN LN, AND CLOSE PROXIMITY TO THE LOOP 101 AND I-17 FREEWAYS
- 2017 IMPROVEMENTS COMPLETED: ROOF, LANDSCAPING, PARKING LOT, AND SIGNAGE
- AGGRESSIVE OWNERSHIP
CALL US TODAY
602.362.0803-
PROPERTY LOCATION Phoenix, AZ
-
BUILDING SIZE 157,684 SF
-
AVAILABLE SQ. FT. 7,276 SF
Rose Garden Business Park
Ricky Borane,
Leasing Manager
2425 W 12th St, Unit 6
Tempe,
AZ
85282
p. 602.362.0803
c. 520.495.8352
CURRENT AVAILABILITIES
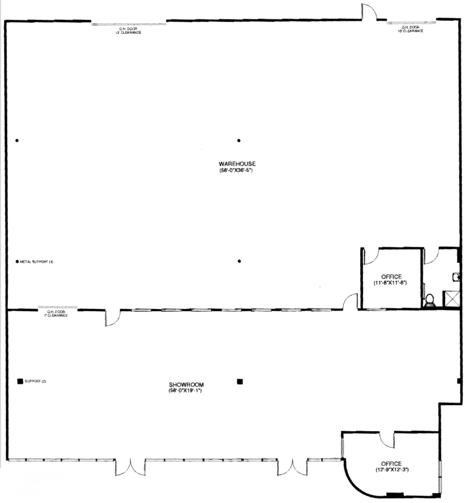
| BUILDING | SUITE | Total size | Office Size | Office % | Type | Clear HT. | GL | DL | Floor plan | Photos |
|---|---|---|---|---|---|---|---|---|---|---|
| 3 | 1801-1 | 2,245 | 900 | 40% | IND | 0 | 0 | 0 | View plan | NOT AVAILABLE |
| 3 | 1801-2 | 2,000 | 802 | 40% | IND | 0 | 0 | 0 | View plan | View Photos |
| 8 | 20801-10 | 3,031 | 1,264 | 42% | IND | 17 | 0 | 2 | View plan | View Photos |