Twins Business Park
1430 - 1454 W 12th Pl Tempe, AZPROPERTY FEATURES
- ONE SUITE AVAILABLE
- EVERY BAY HAS A MINIMUM OF 1 GRADE LEVEL DOOR AND 1 TRUCKWELL
- LARGE TRUCK COURT WITH EXCELLENT MANEUVERABILITY
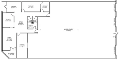
- FUNCTIONAL FLOOR PLANS
- 16' CLEAR HEIGHT
- AMPLE POWER
- SUPERIOR FREEWAY ACCESS TO I-10, SKY HARBOR AIRPORT, I-143, AND LOOP 202
CALL US TODAY
602.362.0803-
PROPERTY LOCATION Tempe, AZ
-
BUILDING SIZE 121,070 SF
-
AVAILABLE SQ. FT. 18,079 SF
Twins Business Park
Ricky Borane,
Leasing Manager
2425 W 12th St, Unit 6
Tempe,
AZ
85282
p. 602.362.0803
c. 520.495.8352
CURRENT AVAILABILITIES
| BUILDING | SUITE | Total size | Office Size | Office % | Type | Clear HT. | GL | DL | Floor plan | Photos |
|---|---|---|---|---|---|---|---|---|---|---|
| a | 1430 | 7,435 | 2,327 | 31% | IND | N/A | N/A | N/A | View plan | View Photos |
| a | 1446 | 4,974.87 | 1,316.05 | 26% | IND | N/A | N/A | N/A | View plan | View Photos |
| a | 1448 | 5,995.13 | 1,585.95 | 26% | IND | N/A | N/A | N/A | View plan | View Photos |