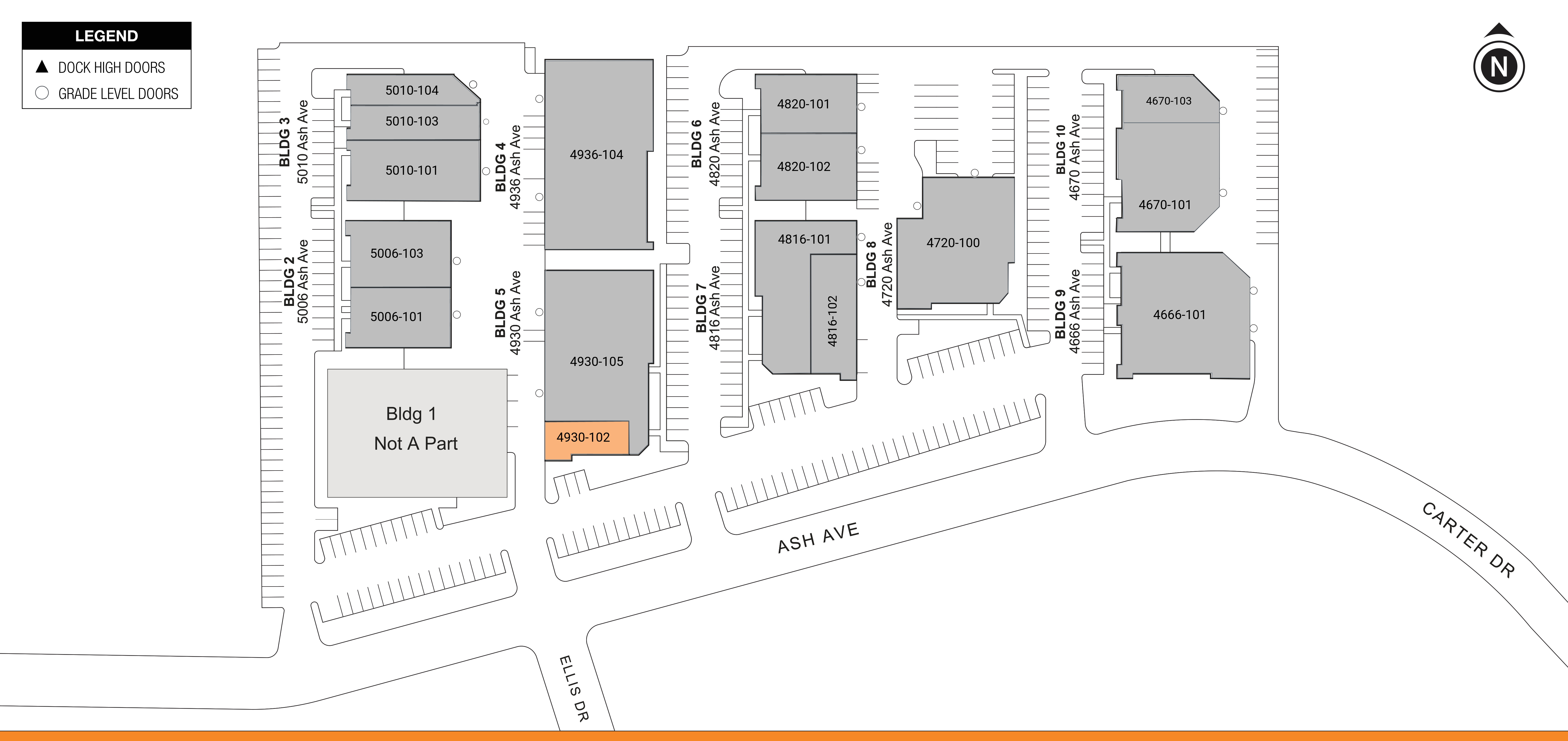
Ash Business Center
5010 S. Ash Ave Tempe, AZPROPERTY FEATURES
- 1,920 TO 5,100 SF AVAILABLE FOR LEASE
- GID ZONED, CITY OF TEMPE
- GRADE LEVEL LOADING
- 14' - 16' MINIMUM CLEAR HEIGHT
- AMPLE PARKING
- CONVENIENT ACCESS MULTIPLE FREEWAYS
- NEW IMPROVEMENTS: LANDSCAPE, EXTERIOR PAINT, ROOF, HVAC, SIGNAGE
- CONTACT BROKER FOR LEASE RATE
CALL US TODAY
602.362.0803-
PROPERTY LOCATION Tempe, AZ
-
BUILDING SIZE 89,754 SF
-
AVAILABLE SQ. FT. 10,077 SF
Ash Business Center
Ricky Borane,
Leasing Manager
2425 W 12th St, Unit 6
Tempe,
AZ
85282
p. 602.362.0803
c. 520.495.8352
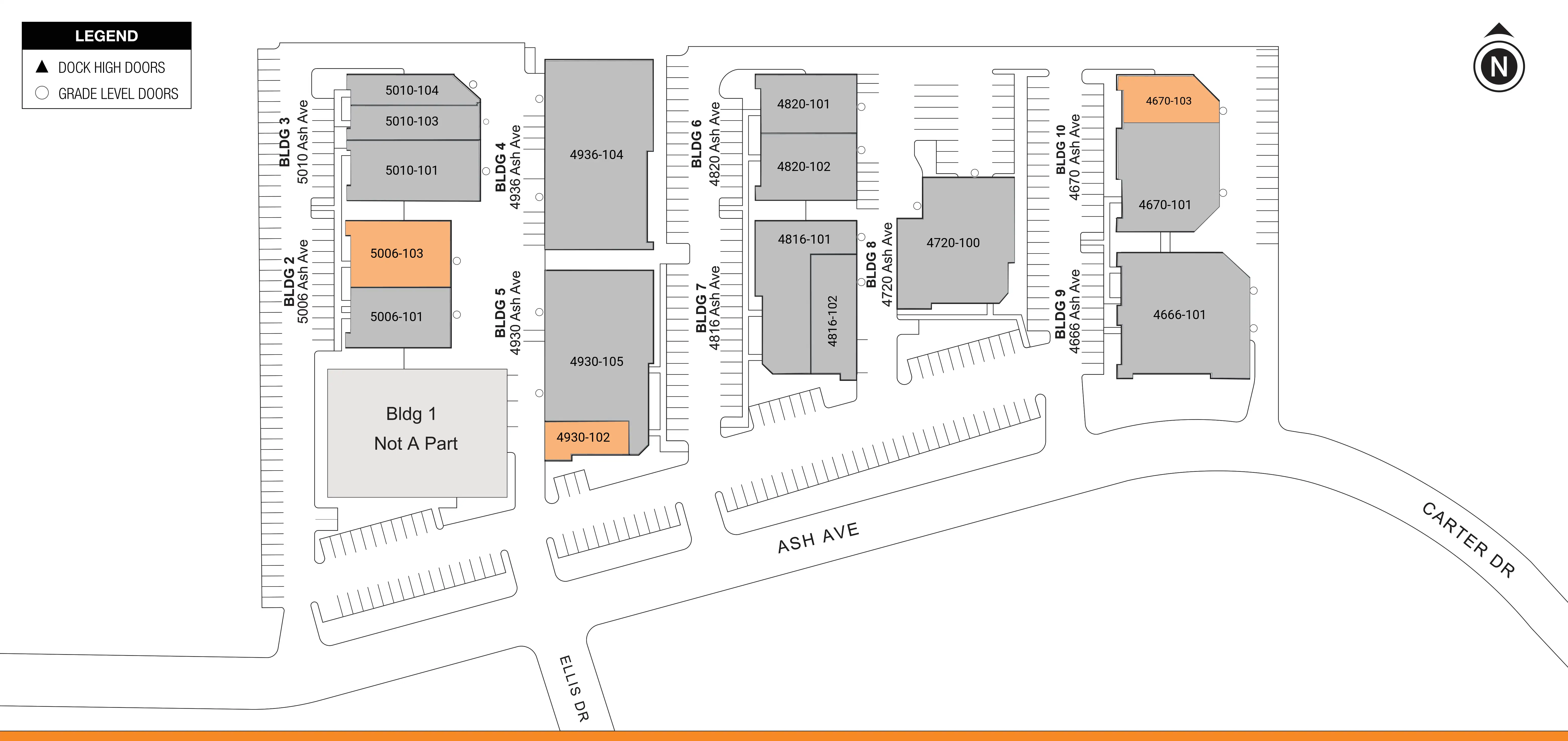
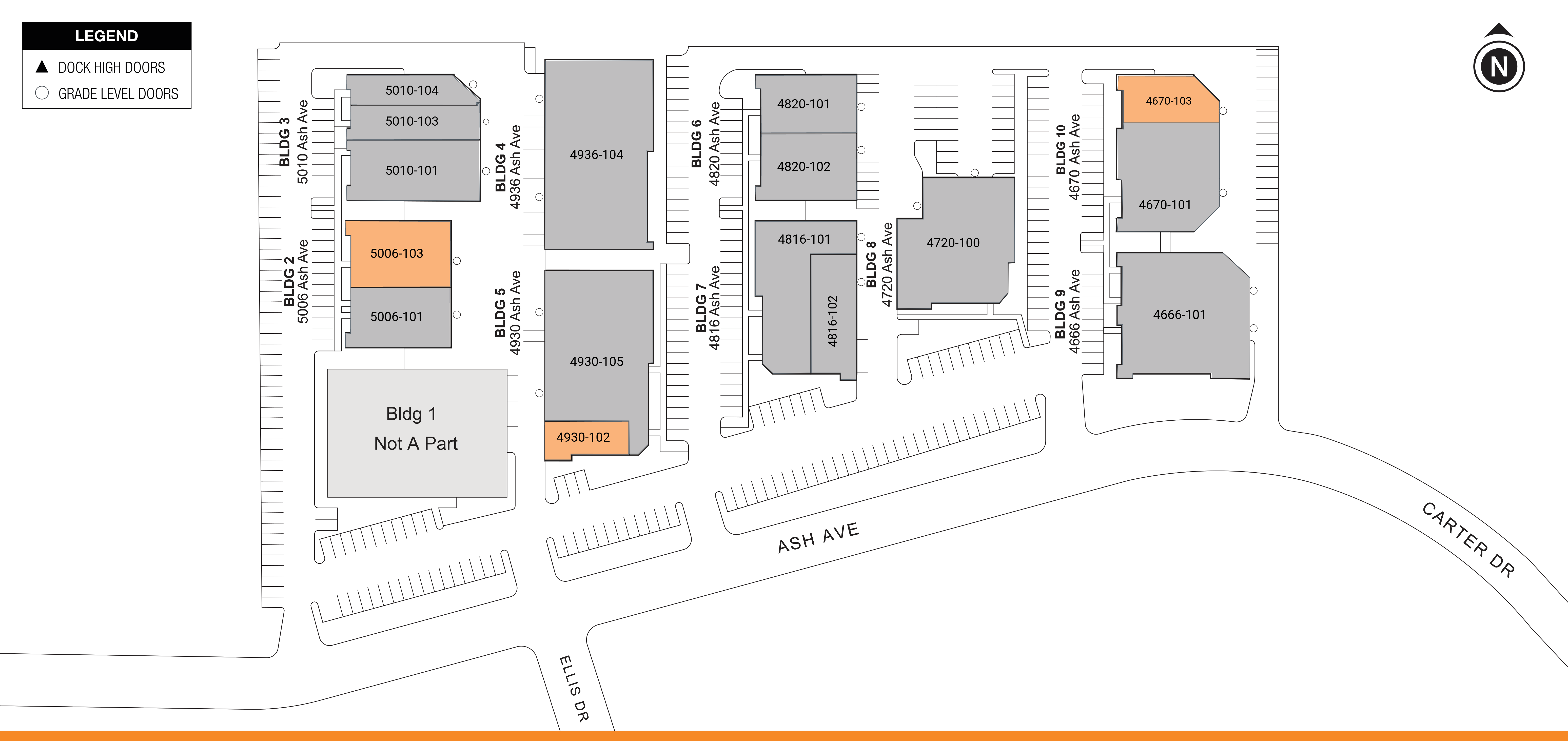
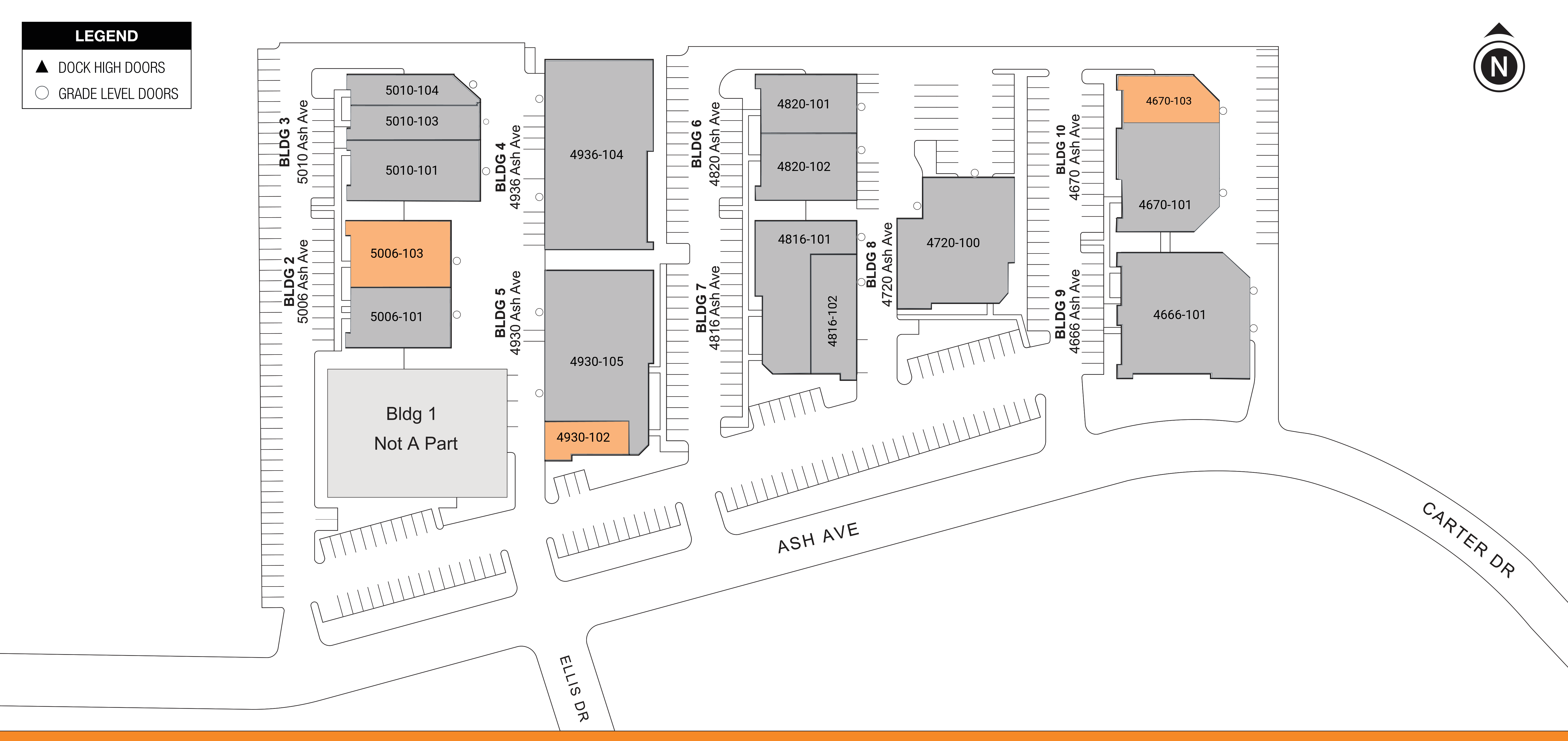
CURRENT AVAILABILITIES
| BUILDING | SUITE | Total size | Office Size | Office % | Type | Clear HT. | GL | DL | Floor plan | Photos |
|---|---|---|---|---|---|---|---|---|---|---|
| 10 | 4670-103 | 3,991 | 3,028 | 76% | IND | N/A | N/A | N/A | NOT AVAILABLE | NOT AVAILABLE |
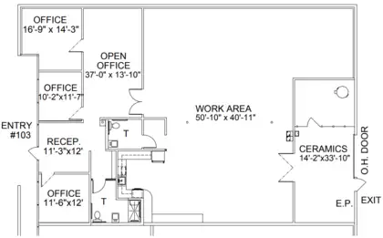
| 5 | 4930-102 | 1,928 | 1,928 | 100% | IND | 0 | 1 | 0 | View plan | View Photos |
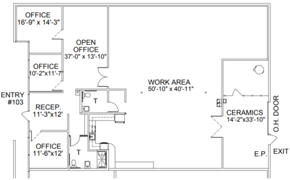
| 2 | 5006-103 | 4,166 | 1,505 | 36% | IND | N/A | N/A | N/A | View plan | View Photos |