Northwest Business Park
2310-2440 West Mission Lane, 9014-9034 North 23rd Ave. & 9013-9033 North 24th Ave Phoenix, AZPROPERTY FEATURES
- CONTEMPORARY FINISHES AND EXTENSIVE GLASS LINES
- OUTSTANDING VISIBILITY
- STRONG IDENTITY WITH FRONTAGE ON DUNLAP AVE
- SUPERIOR FREEWAY ACCESS TO I-17, LOOP 101 AND SR 51 FREEWAYS
- 2 MILLION SF OF RETAIL NEARBY
- EFFICIENT LOADING AREAS AND DRIVE-UP SURFACE PARKING
- ENERGY EFFICIENT EXTERIOR/INTERIOR LIGHTING
- WELL MAINTAINED WITH LUSH LANDSCAPING
CALL US TODAY
602.362.0803-
PROPERTY LOCATION Phoenix, AZ
-
BUILDING SIZE 227,687 SF
-
AVAILABLE SQ. FT. 14,480 SF
Northwest Business Park
Ricky Borane,
Leasing Manager
2425 W 12th St, Unit 6
Tempe,
AZ
85282
p. 602.362.0803
c. 520.495.8352
CURRENT AVAILABILITIES
| BUILDING | SUITE | Total size | Office Size | Office % | Type | Clear HT. | GL | DL | Floor plan | Photos |
|---|---|---|---|---|---|---|---|---|---|---|
| 5 | 5_7 | 1,757 | 0 | 0% | IND | 0 | 0 | 0 | View plan | View Photos |
| 5 | 5_8-9 | 2,664 | 0 | 0% | IND | 0 | 0 | 0 | View plan | View Photos |
| 7 | 7_5 | 1,315 | 0 | 0% | IND | 0 | 0 | 0 | View plan | View Photos |
| 11 | 11_1 | 2,016 | 0 | 0% | IND | 0 | 0 | 0 | View plan | View Photos |
| 11 | 11_5 | 2,016 | 0 | 0% | IND | 0 | 0 | 0 | View plan | NOT AVAILABLE |
| 11 | 11_6-7 | 4,032 | 0 | 0% | IND | 0 | 0 | 0 | View plan | View Photos |
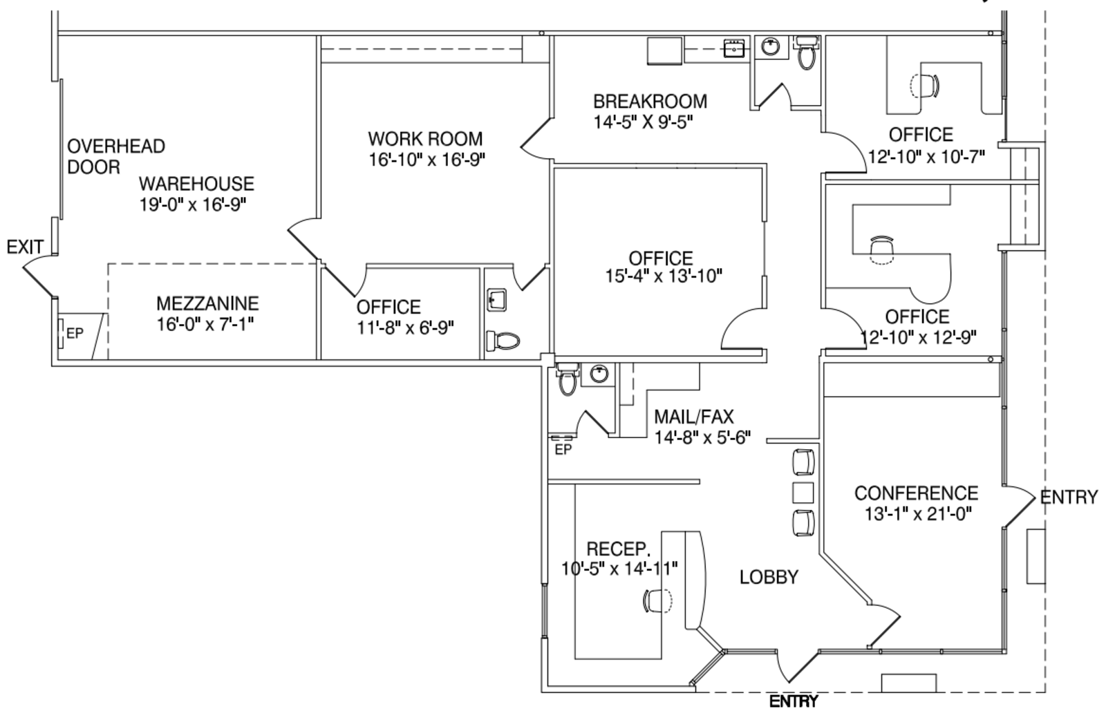
| 11 | 11_9A | 680 | 680 | 100% | OFF | 13 | 0 | 0 | NOT AVAILABLE | View Photos |